Hier kann man Wurzeln schlagen ++ Haus in Bettrath-Hoven
-
* biet+kauf ist hier möglich.
++
„EINE DOPPELHAUS-HÄLFTE IN
DER MAN WURZELN SCHLAGEN KANN“
Gegossener Beton-Keller, Fenster mit echten, glasteilenden Sprossen, große, plattierte Terrasse plus Garten der nicht zu groß aber auch nicht zu klein ist, viel Tageslicht in allen Räumen, freundliche, helle Ausstattungen und wie wir hören auch eine sehr gut funktionierende, umgängliche Nachbarschaft ++ Ideale Voraussetzungen für eine kleine Familie um hier Wurzeln zu schlagen.
Bettrath-Hoven: Wohnen in Mönchengladbach Neuwerk ist ja schon mal was Besonderes, aber wohnen in Bettrath-Hoven toppt das Ganze dann doch nochmals um Längen. Das von uns angebotene Familienhaus befindet sich im Norden der Stadt und verbindet städtische Infrastruktur mit einer angenehm ruhigen Wohnatmosphäre. In dieser Mikrolage sprechen wir von Anliegerstraßen und Fußwegen … Sie können Ihre Kinder hier also sorgenfrei spielen lassen.
In den folgenden Texten benennen wir das Erdgeschoss als EG, das Dachgeschoss als DG, des Spitzboden als Studio und das Untergeschoss als UG. Die Wohnfläche kürzen wir mit Wfl. ab und die Nutzfläche mit Nfl. Alle Daten verstehen sich als vorläufige Daten die überprüft werden und alle Maßangaben verstehen sich als Circamaße.
DIE ECKDATEN
Art: Doppelhaushälfte
Wfl.: 105,86 m² + Studio-Nfl. 11,11 m²
Nfl.: 69,46 m² + Spitzboden-Nfl. 11,11 m²
Keller: gegossener Betonkeller WU-Beton
Geschossdecken: EG+DG Stahlbeton
Decke im Spitzboden: Holzbalkendecke
Zimmer: 4 plus K/D/B/G-WC/Vollkeller und Terrasse
Grund: 230 m²
Garage: ja
Tageslichtbad: 1
Gäste-WC: 1
AUSSTATTUNGEN:
… vgl. Rubrik Ausstattungen
RAUMAUFTEILUNGEN:
… vgl. Rubrik SONSTIGES
INFO-BOX
************ DAS SOLLTEN SIE WISSEN
* biet+kauf ist hier möglich.
* biet+kauf IST KEIN BIETER-VERFAHREN und
* biet+kauf ist auch absolut nicht kompliziert
… biet+kauf ist vielmehr eine Kaufpreis-Art die ausschließlich bei Wolfgang Pauly Immobilien angeboten wird und für Sie den Vorteil hat, dass wir Ihnen, nach dem Besichtigungstermin mit uns und „einer Nacht drüber schlafen“ die Möglichkeit geben uns Ihr persönliches Kaufpreis-Angebot speziell für diese Immobilie zu nennen. Der angebotene Kaufpreis ist nach der ImmoWertV ermittelt worden und kann sowohl bestätigt werden als auch individuell angepasst werden.
Bei der Besichtigung erklären wir Ihnen Details zur Immobilie/ zur Abwicklung und
falls Sie eine Finanzierung benötigen, werden wir uns auch darum kümmern.
** Wohn- und **Nutzfläche im Detail.
wie setzt sich die bewohnte Fläche, die reine Wohnfläche und die Nutzfläche zusammen.
Die reine Wohnfläche des Hauses beträgt ca. 105,86 m² und ergibt sich aus der erstellten Wohnflächenberechnung.
Darüber hinaus verfügt das Haus über eine netto. 11,11 m² große Studiofläche im Spitzboden, die baurechtlich nicht als Wohnfläche genehmigt ist und daher ausschließlich als Nutzfläche ausgewiesen wird. Der Spitzboden ist wohnlich ausgebaut und eingerichtet und wird derzeit als Gästezimmer genutzt, ist jedoch nicht Bestandteil der genehmigten Wohnfläche.
Die von uns angegebene, bewohnte Fläche setzt sich rechnerisch aus der reinen Wohnfläche (105,86 m²) zuzüglich der wohnlich genutzten Nutzfläche im Spitzboden (11,11 m²) zusammen und beträgt somit knapp 117 m². Maßgeblich im rechtlichen Sinne bleibt jedoch ausschließlich die genehmigte Wohnfläche von ca. 105,86 m².
Betriebskosten/ Nebenkosten 416,03 monatliche Kosten in Euro aus 2025/ 2026
49,37 Grundsteuer. -aus 2026-
16,62 Müllgebühren -aus 2026-
17,38 Trinkwasser. -aus 2026-
14.01 Abwasser -aus 2025-
18,89 Regenwasser. -aus 2025-
45,25 Wohn-Gebäudeversicherung. -aus 2025-
4,17 Überschwemmungsschaden. -aus 2025-
9,57 Schornsteinfeger. -aus 2025-
99,91 Strom. -aus 2025-
140,86 Gas. -aus 2025-
_______
416,03 monatliche Kosten
Für Sie vor Ort:
Wolfgang Peter Pauly
Can Luka Kus
W. Pauly mobil: 0163 2750550 -
Flächen
- Wohnfläche: 117 m²
- Grundstücksfläche: 230 m²
- Nutzfläche: 69 m²
- Zimmer insgesamt: 4
- Schlafzimmer: 3
- Badezimmer: 1
- Etagen: 2
- Stellplatzart: Garage
- Außenstellplätze: 1
- Garagenstellplätze: 1
- Terrassen: 1
Zustand & Erschließung
- Baujahr: 1989
- Zustand: gepflegt
- Keller: voll unterkellert
Sonstiges
* biet+kauf ist hier möglich.
* biet+kauf IST KEIN BIETER-VERFAHREN und
* biet+kauf ist auch absolut nicht kompliziert
++
RAUM-AUFTEILUNG
Durchdachte, praktische Aufteilungen mit klassischen und auch schicken Details. Sanitärräume mit Tageslicht. Vollkeller mit 4 Räumen: Werkraum/Wasch-Trockenraum/Vorratsraum und Allzweckraum. Praktisch auch die Garage mit direktem, rückwärtigem Zugang zum Garten/ zur Terrasse.
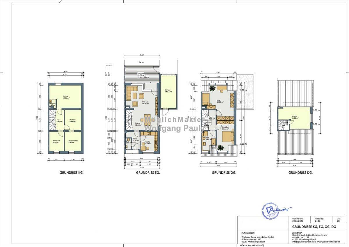
DIE RAUM-AUFTEILUNGEN
EG mit 55,77 m²
Diele
Gäste-WC
Küche
offenes Treppenhaus bis zum SPB
Essen … offen zum
Wohnzimmer … mit direktem Zugang zur
Terrasse/ Garten
DG mit 50,09 m²
Diele
Schlafen 3
ursprünglich 2 Kinderzimmer die zu einem großen Homeoffice-Zimmer wurden … neue Wand rein und dann sind es wieder 2 Kinderzimmer
Schlafen 2
Tageslicht Badezimmer
Studio mit 11.11 m² netto
Spitzboden -derzeit Schlafzimmer 1- **
Studioraum** im SPB wird als wohnlich ausgestattete Nutzfläche, nicht als Wohnfläche bezeichnet. Unter der Rubrik: DAS SOLLTEN SIE WISSEN erklären wir Wohn- und **Nutzfläche im Detail. Derzeitige Nutzung als Gäste-Schlafzimmer/ Schlafen 1.
WICHTIGE HINWEISE
Exposé Verstehen Sie dieses Exposé bitte als eine Vorabinformation zum Angebot. Alle Daten/ Detailangaben sind von uns nach Auskunft der Eigentümer wiedergegeben worden. Wolfgang Pauly Immobilien GmbH wird als Nachweismakler oder als Vermittlungsmakler tätig.
PROVISION
Gesetzlich vorgeschriebene Offenlegung. Käuferprovision verdient bei notarieller Beurkundung des Kaufvertrages.
Wolfgang Pauly Immobilien GmbH hat einen Vertrag in gleicher Provisionshöhe mit dem Verkäufer abgeschlossen.
Geldwäschegesetz (GwG) Wolfgang Pauly Immobilien GmbH ist verpflichtet nach § 2 Abs. 1 Nr. 14 und § 11 Abs. 1, 2 bzw. § 11 Abs. 4 GwG zu handeln. Gesetzestexte können am Firmensitz eingesehen werden.
§ 80 Abs. 4 GEG
Wir kommen unserer Verpflichtung hiermit nach, der Erwerberpartei ein informatorisches Beratungsgespräch zum Energieausweis durch einen Energieberater der Verbraucherzentrale Bundesverband anzubieten.
Link: https://verbraucherzentrale-energieberatung.de/beratung/stationaere-beratung/?cn-reloade=1
++- Immobilie ist verfügbar ab: sofort
-
* biet+kauf ist hier möglich.
* biet+kauf IST KEIN BIETER-VERFAHREN und
* biet+kauf ist auch absolut nicht kompliziert++
AUSSTATTUNGEN
die sich sehen lassen können.Zeitlos elegant die hellen Holz-Dielen-Oberböden im EG, bequem die elektrischen Rollladenantriebe im EG und der rückwärtige Zugang über die Terrasse zur Garage mit elektrischem Torantrieb. Landhausstil mit echten, glasteilenden Sprossen in den Fenstern und Türen und auch der Vollkeller mit 4 Räumen >> Werkraum/ Wasch-Trockenraum/ Vorratsraum und Allzweckraum.
Die Ausstattungen/ ein Auszug
FENSTER/ TÜREN/ HAUSTÜRE
aus Meranti Hartholz mit Pilzkopf-Sicherheitsbeschlägen und abschließbaren Griffoliven. Sicherheits-Verriegelung mit Bolzen und Riegel bei der Haustüranlage. Alle Fenster und Türen mit Isoverglasungen/ überwiegend Rolladen/ elektrische Rollladenantriebe im EG. Positiv ist hier zu erwähnen, dass die derzeitige braune Oberflächenbeschichtung farblich veränderbar ist . BICOLOR -farblich innen und außen verändern wie Sie es möchten-i st hier problemlos möglich.OBERBÖDEN/ TREPPE
Sehr gepflegte, helle Landhausdielen im gesamten Wohn-Ess-Küchenbereich. Im DG und im Spitzboden (Nutzfläche im SPB ) sind überwiegend Teppichböden verlegt. Im KG sind die Böden mit einem pflegeleichtem, farbigem Kunststoffbelag ausgelegt. Die offene Treppe mit Trittstufen aus Buche/ Geländer aus Buche und einer passenden, weiß lackierten Stahlunterkonstruktion erschließt alle Geschosse vom KG bis zum SPB.BETON-KELLER gegossen
abschließbare Stulp-Sprossentür zur Terrasse
Gas Brennwert von Junkers
helle Holz Innentüren und Holzzargen
weißes Schalter -und Steckersystem
18 m² plattierte Terrasse Zugang zur
Garage … mit
elektrisch angetriebenem Tor
Markise zur Terrasse mit elektr. Antrieb
rückwärtige Zufahrt zur Garage
rückwärtiger Garten komplett eingefriedet
frontseitiger Garten mit Zugang zur Garage und gleichzeitig
überdachter Abstellplatz für die Mülltonnen
Zuwege zum Haus sind gepflastert
Sanitärräume sind hell gefliest
Kaminofen im Wohnbereich ist vorbereitet
Vollklinker rotbraun
Garderobe i.d. DieleBADEZIMMER/ GÄSTE-WC
Beide mit Tageslicht und hellen Ausstattungen/ Bad im OG mit Dusche und Wanne/ VSG-Sicherheitsglas zur Dusche/ Oberböden gefliest.KÜCHE oder sonstige MÖBEL
können gegen Mehrpreis übernommen werden.Für Sie vor Ort:
Wolfgang Peter Pauly
W. Pauly mobil: 0163 2750550++
- Heizungsart: Zentralheizung
- Befeuerung: Gas
- Badausstattung: Dusche, Badewanne
-
- Energieausweis-Art: Bedarf
- Energieausweis gültig bis: 21.01.2036
- Endenergiebedarf: 143,90 kWh/(m²*a)
- Primärenergieträger: Gas
- Heizenergieverbrauchskennwert: 143,90 kWh/(m²*a)
- Energieeffizienzklasse: E
- Baujahr (Energieausweis): 1989
- Energieausweis-Ausstellungsdatum: 22.01.2026
- Energieausweis-Jahrgang: ab Mai 2014
- Energieausweis-Gebäudeart: Wohngebäude
-
* biet+kauf ist hier möglich.
* biet+kauf IST KEIN BIETER-VERFAHREN und
* biet+kauf ist auch absolut nicht kompliziert++
MÖNCHENGLADBAQCH
Bettrath-Hoven/ Neuwerk„Wohnen in Neuwerk ist ja schon mal was Besonderes, aber wohnen in Bettrath-Hoven toppt das Ganze dann doch nochmals um Längen.
Das von uns angebotene Familienhaus befindet sich im Norden der Stadt und verbindet städtische Infrastruktur mit einer angenehm ruhigen Wohnatmosphäre. Das Viertel ist überwiegend von weniger befahrenen Straßen sowie einer Mischung aus Einfamilien- und Mehrparteienhäusern geprägt. In der Mikrolage sprechen wir von Anliegerstraßen und Fußwegen … Sie können Ihre Kinder hier also relativ sorgenfrei spielen lassen.
In der näheren Umgebung finden sich Grün- und Erholungsflächen, die zu Spaziergängen, sportlichen Aktivitäten oder zum Verweilen im Freien einladen. Zudem sorgen Sportvereine und vielfältige Freizeitmöglichkeiten für ein aktives und abwechslungsreiches Angebot für Jung und Alt.
Bettrath-Hoven verfügt über eine gute Auswahl an Bildungsangeboten. Mehrere Kindertagesstätten, Vorschulen sowie Grund- und weiterführende Schulen sind gut erreichbar und gewährleisten eine verlässliche sowie qualitativ hochwertige schulische Betreuung und Ausbildung.
Auch infrastrukturell überzeugt der Stadtteil. Die Autobahn A52 ist schnell erreichbar und bietet eine zügige Anbindung nach Düsseldorf, Krefeld, Aachen sowie in Richtung Venlo/ Roermond in den Niederlanden. Ergänzt wird dies durch einen gut organisierten öffentlichen Nahverkehr mit mehreren Buslinien, die eine direkte Verbindung in die Innenstadt von Mönchengladbach ermöglichen.
Die gesundheitliche Betreuung ist hervorragend. In der Umgebung befinden sich Allgemein- und Facharztpraxen. Zusätzlich liegt das Neuwerker Krankenhaus in unmittelbarer Nähe (ca. 500 Meter) und gewährleistet eine umfassende medizinische Versorgung.
Bettrath-Hoven überzeugt durch seine hohe Wohn- und Lebensqualität. Der Stadtteil ist gleichermaßen für Familien, Paare und Alleinstehende attraktiv und punktet mit einer gelungenen Kombination aus Bildungsangeboten, guter Verkehrsanbindung und zuverlässiger medizinischer Versorgung.
Für Sie vor Ort:
Wolfgang Peter Pauly
W. Pauly mobil: 0163 2750550++










































































