Eine Architektur mit Haltung ++ und auch ein Zuhause mit Charakter
-
++
Eine Architektur mit Haltung,
und auch ein Zuhause mit Charakter.
Diskrete Präsenz, klare Linienführung und ein Raumkonzept, das zur Ruhe einlädt:?Dieser Split-Level-Bungalow entfaltet seine Wirkung nicht durch laute Gesten, sondern durch eine sorgfältige Komposition aus Licht, Blickachsen und struktureller Eleganz.
Im zurückgesetzten Grundstücksbereich gelegen, erreicht man das Haus über eine rund 30 m lange Auffahrt. Das Einfahrtstor und die geschützte Positionierung gewährleisten ein Höchstmaß an Privatsphäre. Ein diskreter Rückzugsraum für Menschen, die Wert auf Ruhe und individuelle Entfaltung legen.
Im Inneren überzeugt das Gebäude durch ein offen gestaltetes Raumgefüge, dessen versetzte Ebenen subtil zonieren und gleichzeitig fließende Übergänge schaffen. Dieses Split-Level-Design erzeugt ein Gefühl von räumlicher Großzügigkeit und architektonischer Tiefe, das man nicht erklärt, sondern erlebt. Großformatige Fensterflächen lenken den Blick in den Garten, eine grüne Oase mit Teich, überdachtem Pool in der Natur und Architektur in Dialog treten.
Die Raumwirkung ist geprägt von Transparenz, Lichtsensibilität und einem feinen Gespür für proportionale Ausgewogenheit. Hier entsteht Wohnkultur, die nicht gefällig, sondern authentisch ist. Ein Haus für Menschen, die Zurückhaltung nicht mit Verzicht verwechseln, sondern als Ausdruck von Qualität verstehen.
DIE ECKDATEN
Wfl.: 192 m²
Nfl.: 75 m²
Garten: 540 m²
Grund: 998 m²
Garage: Tandem
Stellplätze: gesamt ca 5
AUSSTATTUNGEN:
… vgl. Rubrik Ausstattungen
RAUMAUFTEILUNGEN:
… vgl. Rubrik SONSTIGES
INFO-BOX
************ DAS SOLLTEN SIE WISSEN
Bei der Besichtigung erklären wir Ihnen Details zur Immobilie/ zur Abwicklung und falls Sie eine Finanzierung benötigen, werden wir uns auch darum kümmern.
Für Sie vor Ort:
Ilka Rath,
Ilka Rath mobil: 0176 340 662 72
++ -
Flächen
- Wohnfläche: 192,82 m²
- Grundstücksfläche: 998 m²
- Zimmer insgesamt: 8
- Schlafzimmer: 4
- Badezimmer: 2
- Terrassen: 1
Zustand & Erschließung
- Baujahr: 1973
Sonstiges
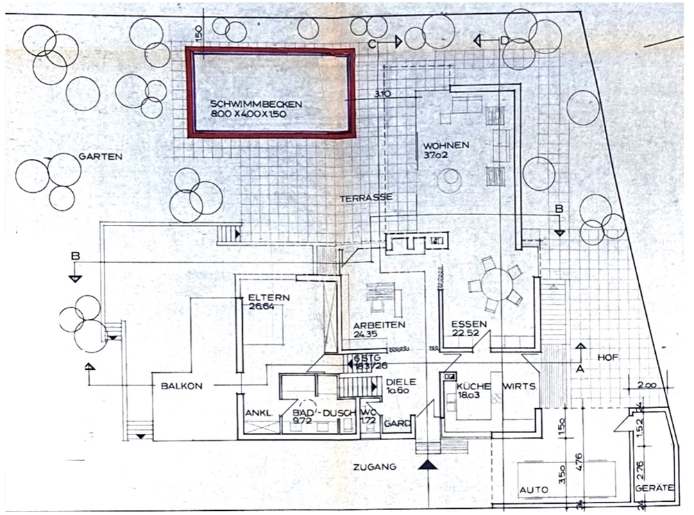
++ RAUM-AUFTEILUNG
Außergewöhnlicher Bungalow präsentiert sich als architektonisches Statement für anspruchsvolles Wohnen. Das großzügig inszenierte Raumkonzept in Kombination mit elegant abgestuften Split-Level-Ebenen schafft ein unvergleichliches Gefühl von Weite, Leichtigkeit und stilvoller Wohnkultur.
DIE RAUMAUFTEILUNGEN
… jede Ebene öffnet neue Blickachsen, setzt feine architektonische Akzente und unterstreicht die außergewöhnliche, repräsentative Wohnqualität dieses Hauses.
EG besteht aus EBENE 1 und EBENE 2: 150 m²
EBENE 1:
Entree
Wohn- und
Esszimmer … mit Zugang zur
56 m² großen Terrasse und … zum
Gäste-WC
Küche … mit
Abstellraum und mit Zugang … zum
Garten
EBENE 2:
Schlafen mit Zugang … zur
Dachterrasse (optional) 30 m²
Masterbad
UG/ Souterrain 42 m² Wfl.
Diele/ Lese-Ecke
Dusch-Bad
Zimmer 1 … und
Zimmer 2 je mit Zugang … zur
36 m² Terrasse
Zimmer 3
Zimmer 4/ Büro und … zur
Keller-Nutzfläche: 75 m²
Waschraum
Heizungsraum
Partyraum … mit
Sauna … und
Dusche, ebenerdig … sowie
Kelleraußentreppe … zum
Garten
Garten: geschätzte 540 m²
überdachter Pool 32 m²
Gartenhaus
Gewächshaus
Kelleraussentreppe
Gartenteich
WICHTIGE HINWEISE
Exposé Verstehen Sie dieses Exposé bitte als eine Vorabinformation zum Angebot. Alle Daten/ Detailangaben sind von uns nach Auskunft der Eigentümer wiedergegeben worden. Wolfgang Pauly Immobilien GmbH wird als Nachweismakler oder als Vermittlungsmakler tätig.
PROVISION
Gesetzlich vorgeschriebene Offenlegung. Käuferprovision verdient bei notarieller Beurkundung des Kaufvertrages.
Wolfgang Pauly Immobilien GmbH hat einen Vertrag in gleicher Provisionshöhe mit dem Verkäufer abgeschlossen.
Geldwäschegesetz (GwG) Wolfgang Pauly Immobilien GmbH ist verpflichtet nach § 2 Abs. 1 Nr. 14 und § 11 Abs. 1, 2 bzw. § 11 Abs. 4 GwG zu handeln. Gesetzestexte können am Firmensitz eingesehen werden. -
++
DIE AUSSTATTUNGEN
… ein AuszugIn den folgenden Texten benennen wir das Erdgeschoss als EG, die LEVEL als EBENE 1 und EBENE 2 und das Untergeschoss/Souterrain als UG. Die Wohnfläche kürzen wir mit Wfl. ab und die Nutzfläche mit Nfl. Alle Maßangaben verstehen sich als Circamaße.
– Toskanischer Travertinboden“
Echtholz-Parkett überwiegend
Hebe-Schiebe-Anlage
elektrisch angetriebenen Rollläden, teilweise sogar … mit
Regen-/Sonnen-Sensor
Kamin
Einbauschränke
Einbauküche optional … mit
Neef-EinbaugerätenFENSTER UND HAUSTÜRANLAGE:
MERANTI-HOLZ mit dem großen Vorteil BI-COLOR-ANSICHTEN
mit geringem Aufwand erstellen zu können. Derzeit ist die Außenfarbe dunkelgrau und die Innenfarbe weiß eine angesagte Kombination … wählen Sie nach Ihrem Gusto. Meranti Holzfenster mit Isoglas und
abschließbaren GriffolivenMarkise
Holz-Innentüren
Glasflügel-Türe zur Wohnhalle hin
Gegensprechanlage
pflegeleichte Oberböden:
Fliesen in der Küche/ den Nebenflächen
Wände mit Sichtmauerwerk
Schuko SchaltersystemMastert-Bad mit Wanne/ Dusche/ WC/ Bidet
Badezimmer im UG mit 2 Waschbecken
Sauna mit Walk-in-Duscheelektr. angetriebenes Garagentor
elektr. angetriebenes EinfahrtstorSchwimmbad, 48 cbm … mit
Schiebe-Überdachung
Gartenteich
eingefriedeter Garten
elektr. angetriebene Markise
Brunnenbewässerung/ PumpeMODERNISIERUNGEN:
Auffahrt neu gepflastert
Abwasserleitungen/ Kanal neu … mit
Abwasserpumpe
Garagendach neu
Dachsanierung/DämmungFür Sie vor Ort:
Ilka Rath,
Ilka Rath mobil: 0176 340 662 72WICHTIGER HINWEIS:
– 80 Abs. 4 GEG
Wir kommen unserer Verpflichtung hiermit nach, der Erwerberpartei ein informatorisches Beratungsgespräch zum Energieausweis durch einen Energieberater der Verbraucherzentrale Bundesverband anzubieten.Link: https://verbraucherzentrale-energieberatung.de/beratung/stationaere-beratung/?cn-reloade=1
++
- Heizungsart: Zentralheizung
- Befeuerung: Gas
- Badausstattung: Dusche, Badewanne, Bidet
- Küche: Einbauküche
-
- Energieausweis-Art: Bedarf
- Energieausweis gültig bis: 01.11.2035
- Endenergiebedarf: 154,74 kWh/(m²*a)
- Primärenergieträger: Gas
- Heizenergieverbrauchskennwert: 154,74 kWh/(m²*a)
- Energieeffizienzklasse: E
- Baujahr (Energieausweis): 1973
- Energieausweis-Ausstellungsdatum: 02.11.2025
- Energieausweis-Jahrgang: ab Mai 2014
- Energieausweis-Gebäudeart: Wohngebäude
-
++
Heiß begehrt – wir haben sie ++ KAMPHAUSENER HÖHE
Die Lage zählt zu den gehobenen und besonders gefragten Lagen in Odenkirchen/ Kamphausener Höhe und Nähe Eierberg.
Heiß begehrt – wir haben sie/ MG-Odenkirchen/ West … unser Angebot Nr. 13822Odenkirchen – oder wie die Einheimischen sagen: Okerke ist ein lebendiger Stadtteil mit einem ganz besonderem Charakter. Hier gibt es einen Metzger, Bäcker, Supermärkte und Discounter aber auch eine gute Eisdiele, Sparkasse und vieles mehr, was das Leben angenehm macht. Man trifft sich auf dem Marktplatz wo 2 mal wöchentlich der Wochenmarkt stattfindet.
Ärzte vieler Fachrichtungen sind vertreten, Kindergärten, Grundschule, Gesamtschule, Gymnasium, alles prima erreichbar.Eine optimale Verkehrsanbindung:
Die Autobahnen A44, A46 und A61 (Koblenz-Venlo, Aachen/Düsseldorf-Neuss/Köln) sind in wenigen Kilometern erreicht. Hervorragende Anbindungen nach Jüchen und Rommerskirchen über Bundes- und Landstraßen.Naherholungsgebiete wie die Niers, der Beller Park und der Kreuzweiher sind schnell erreichbar. Nicht weit entfernt befindet sich der Tierpark Odenkirchen.
Für Käufer, die Qualität und Ruhe mit guter Erreichbarkeit verbinden möchten
Für Sie vor Ort:
Ilka Rath,
Ilka Rath mobil: 0176 340 662 72++
-
- Kaufpreis: 848.000 €
- Käuferprovision: 2.38 % vom beurkundeten Kaufpreis
Grundrisse

























































