Wohnimmobilie > Etagenwohnung
Referenz Vermietet

DENKMAL++ "Herrschaftlich" Wohnen

41236 Mönchengladbach
Preis auf Anfrage

13577
1880
102 m²
3
  • *Telefonische Anfragen bearbeiten wir nicht, siehe INFO-BOX unter Objektbeschreibung

    ++
    Denkmalgeschütztes Haus aus 1880 … eine Bau-Ikone aus der Gründerzeit. Mit reichhaltiger Ausstattung und großzügigen Raumzuschnitten ist diese Wohnungen von ganz besonderer Art. Hier spürt man den Flair einer besonderen Bau-Epoche. Ein ansprechender Entree-Bereich mit Oberböden aus klassischen Steinböden runden den positiven Eindruck dieser Immobilie ab.

    INFO-BOX
    ********* DAS SOLLTEN SIE WISSEN

    *WICHTIG:

    DIE ANSCHRIFT ZUM ANGEBOT erhalten Sie nach dem Exposé-Download und der Bestätigung des Agreementlinks … die Anschrift befindet sich dann für Sie auf der Startseite des Online-Exposé, unterhalb des Titelbildes. Ihre Anfrage wird zeitnah durch unser Datenbanksystem bearbeitet. Telefonische Anfragen werden wir nicht bearbeiten.

    **WICHTIG
    Die Eigentümer wünschen einen Mietvertrag über mindestens 2 Jahre. Bewerber die Leistungen über das JOBCENTER beziehen, können nicht berücksichtig werden.

    *********
    DIE ECKDATEN:

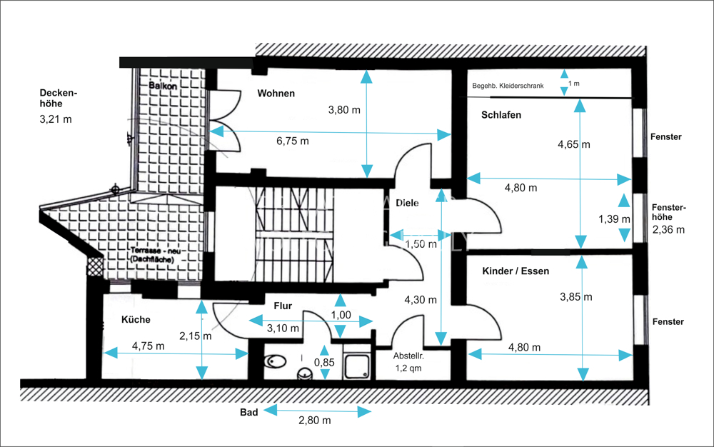
    Wohnfläche: ca.102 m²
    2 Balkone: ca. 12 m²
    Nutzfläche: ca. 5,9 m²
    Deckenhöhe: 3,21 m
    Heizung: Gas zentral
    Parteien im Haus: 3 Parteien
    Busverbindung: gut
    Allee-Lage: Sehr zentral

    Für Sie vor Ort:
    HEIKO KRÜGER
    Heiko Krüger Mobil: 0172 – 211 4460

    ++
  • Flächen

    • Wohnfläche: 102 m²
    • Wohneinheiten: 2
    • Zimmer insgesamt: 3
    • Schlafzimmer: 2
    • Badezimmer: 1
    • Etagen: 1
    • Etage: 1
    • Balkone: 1

    Zustand & Erschließung

    • Baujahr: 1880

    Sonstiges

    *Telefonische Anfragen bearbeiten wir nicht, siehe INFO-BOX unter Objektbeschreibung

    ++ RAUM-AUFTEILUNGEN

    Großzügig geschnittene 3 Zimmerwohnung im 1. Obergeschoss eines denkmalgeschützten, anspruchsvollen Hauses aus der Gründerzeit. Hier lässt sich auf 102 m² wunderbar leben mit tollem Blick vom Balkon aus in eine gepflegte Gartenanlage mit tollem Baumbestand. Einige Besonderheiten dieser Wohnung liegen in den 3,21 m Deckenhöhe, dem außergewöhnlichen Holzdielenboden und den besonders großen Fenstern … Fensterhöhe von 2,36 m.

    Eine Einbau-Küche mit offenem Zugang und Kachelboden, ein kleines, aber gepflegtes Dusch-Bad sind weitere Pluspunkte. Die einzelnen, großen Räume sind sternförmig von der Diele aus angeordnet. Sie werden ein beeindruckendes Wohnambiente vorfinden. Unser Angebot Nr.13577.

    DIE RAUM – AUFTEILUNGEN

    -große Entree-Diele … mit
    -Abstellraum
    -komfortable, offene Küche
    -2 Süd-West-Balkone
    -Wohnzimmer
    -Schlafzimmer
    -Schlafzimmer
    -modernes Dusch-Bad

    -Kellerraum (anteilig)
    Außenbereich:
    – gepflegte Gartenanlage

    HINWEISE:

    Exposé:
    Verstehen Sie dieses Exposé bitte als eine Vorabinfo zum Angebot. Alle Daten sind vom Eigentümer wiedergegeben worden.

    Für Sie vor Ort:

    HEIKO KRÜGER
    Heiko Krüger mobil: 0172 – 211 4460

    ++
  • *Telefonische Anfragen bearbeiten wir nicht, siehe INFO-BOX unter Objektbeschreibung

    ++

    DIE AUSSTATTUNGEN
    … ein Auszug

    Wertige Ausstattungen korrespondieren mit modernen Elementen, gekonnte Raumaufteilungen mit den riesigen Fensterelementen und der „herrschaftlichen“ Deckenhöhe machen aus dieser Wohnung ein Stück ansprechender Gesamtarchitektur.

    DIE OBERBÖDEN
    Alter, gepflegter Eichen-Holzdielenboden im gesamten Dielen-, Wohn-, Ess- ,Gäste- und Schlafbereich. Heller, moderner Steinboden im Bereich der Küche und des Bades.

    DAS BAD
    klein/ gepflegt/modern … mit Dusche/ hochwertigen Armaturen/ beleuchteter Spiegelschrank mit Downlights/ Hänge-WC

    DIE SÜD-WEST-BALKONE
    -mit Bangkirai-Holz-Boden … und
    -Stromanschluss

    -Wärmeschutzglas … als
    -Schallschutz-3fach-Verglasung
    -bodentiefe Türanlage im Balkonbereich
    -Denkmalschutz-Holzfenster

    -Holz-Innentüren
    -Holz-Türzargen
    -weiße Steckersysteme
    -Innen-Wände in Feinputz
    -Gegensprech-Anlage

    Die Küche und das Bad wurden 2013 grundsaniert und renoviert.

    -Gas-Etagenheizung
    -Durchlauferhitzer

    GEMEINSCHAFTSRÄUME
    -Keller

    Für Sie vor Ort:

    HEIKO KRÜGER
    Heiko Krüger mobil: 0172 – 211 4460

    ++

    • Heizungsart: Etagenheizung
    • Befeuerung: Elektro
    • Primärenergieträger: Elektro
    • Energieausweis-Jahrgang: verfügbar bei Besichtigung
    Energieausweis verfügbar bei Besichtigung
    A
    B
    C
    D
    E
    F
    G
    H - I
  • *Telefonische Anfragen bearbeiten wir nicht, siehe INFO-BOX unter Objektbeschreibung

    ++

    MITTEN DRIN,
    UND DOCH WEIT GENUG WEG … in MG-Rheydt/ Bruckner Allee

    Nahezu alles ist fußläufig oder mit dem Fahrrad erreichbar … Einkaufen, Fußgängerzone, Hallenbad, Sportanlagen, Kindergärten, Schulen, Hochschule, Ärzte, Apotheken, Post und Banken. Selbst der Bahnhof Rheydt und der Busbahnhof sind nur einen Katzensprung entfernt. Unser Angebot Nr. 13577.

    EINKAUFEN
    FREIZEIT
    MEDIZINISCHE VERSORGUNG
    SCHULEN / KINDERGÄRTEN
    VERKEHRSANBINDUNGEN

    EINKAUFEN
    Den Discounter um die Ecke und den Einzelhandel in all seinen Facetten in der nahen, fußläufig erreichbaren Innenstadt von Rheydt. Das MINTO in der Mönchengladbacher Einkaufsmeile ist mit dem Auto ebenfalls nur wenige Minuten entfernt.

    FREIZEIT
    Viele Sportarten, ob im Verein oder privat, können in der nahen Umgebung ausgeübt werden. Ob Schwimmen im Stadtbad Rheydt/ Pahlkebad, Fußball im Grenzlandstadion, Tennis, Hockey, Turnen, Bowling, Fitness-Clubs, viele Sportarten sind möglich und innerhalb von Minuten erreicht.

    MEDIZINISCHE VERSORGUNG
    Zu Ärzten aller Fachrichtungen, Apotheken und Tierärzten ist es nicht weit und auch das Rheydter Elisabeth-Krankenhaus ist nur wenige Kilometer entfernt.

    SCHULEN/ KINDERGÄRTEN
    Kindergarten, Grund und Realschulen, Gymnasien und die Hochschule Niederrhein, alles zu Fuß oder mit dem Rad erreichbar.

    VERKEHRSANBINDUNGEN
    Diese sind als hervorragend zu bezeichnen. Über die Autobahnen A 61, A 44 und A 46 bestehen Verbindungen zu den umliegenden Großstädten, dem Düsseldorfer Flughafen, dem Ruhrgebiet oder der Niederlande. Oder zu Fuß zum Bus und mit dem ÖPNV entspannt zum Ziel.

    ++