anno 1829 ++ historisch, besonders, vielseitig
-
*biet+kauf ist hier möglich
++
VORA-INFO
Biedermeierzeit, Anno 1829
Dieses besondere Anwesen ist weit mehr als nur ein Zweifamilienhaus: Es ist ein Stück Geschichte mit Charakter. Der Rest-Hof aus dem Ursprungs-Jahr 1829 erinnert hier und da immer noch an die Biedermeierzeit, in der Wohnen vor allem für Beständigkeit, Klarheit und eine behagliche Bodenständigkeit stand. Nach fast 200 Jahren ist es selbstverständlich, dass das Haus nicht mehr in seiner ursprünglichen Form erscheint. Und doch finden sich hier und da noch Details, die an diese Zeit erinnern, insbesondere im Mauerwerk und in den Decken. Nach fast 90 Jahren im Familienbesitz ist es nun Zeit für einen Neustart und ein liebevolles Make-over.
Das Haus eignet sich hervorragend als Generationen-Haus oder für zwei Parteien. Wer ländlich wohnen und dennoch gute Anbindungen nicht missen möchte, ist hier genau richtig. Ob für Familien mit Kindern, für Wohnen und Arbeiten unter einem Dach oder einfach für den ganz persönlichen Wohntraum. Dieses Haus bietet Ihnen viele Möglichkeiten und ein ganz eigenes, gewachsenes Wohngefühl.
In den folgenden Texten benennen wir das Kellergeschoss als KG, das Erdgeschoss als EG und das Obergeschoss als OG., die Wohnfläche als Wfl und die Zubehörräume als ZR. Alle Maßangaben verstehen sich als Circamaße.
DIE ECKDATEN
Grundbaujahr: 1829
Art: 2-Familienhaus
Wfl. gesamt: 148 m²
Wfl. im EG: 65 m²
Wfl. im OG: 83 m²
ZR. 37 m²
Wintergarten, nicht beheizt: 8,8 m²
Innenhof: 17 m²
Grundstück: 380 m²
Garten: 250 m²
INFO-BOX
*********** DAS SOLLTEN SIE WISSEN
* biet+kauf ist hier möglich.
* biet+kauf IST KEIN BIETER-VERFAHREN
* biet+kauf ist auch absolut nicht kompliziert
… biet+kauf ist vielmehr eine Kaufpreis-Art die ausschließlich bei Wolfgang Pauly Immobilien angeboten wird und für Sie den Vorteil hat, dass wir Ihnen, nach dem Besichtigungstermin mit uns und „einer Nacht drüber schlafen“ die Möglichkeit geben uns Ihr persönliches Kaufpreis-Angebot speziell für diese Immobilie zu nennen. Der angebotene Kaufpreis ist nach der ImmoWertV ermittelt worden und kann individuell angepasst werden.
Bei der Besichtigung erklären wir Ihnen Details zur Immobilie/ zur Abwicklung und falls Sie eine Finanzierung benötigen, werden wir uns auch darum kümmern.
**VORAB-INFO zu unserem Angebot
Dieses Expose stellt eine Vorabinfo zu unserem Angebot dar. Derzeit prüfen wir alle Eckdaten und werden innerhalb er kommenden 10 Tage dieses Expose komplettieren oder/und korrigieren.
***********
AUSSTATTUNGEN:
… vgl. Rubrik Ausstattungen
RAUMAUFTEILUNGEN:
… vgl. Rubrik SONSTIGES
Für Sie vor Ort:
Ilka Rath,
Ilka Rath mobil: 0176 340 662 72
++ -
Flächen
- Wohnfläche: 148 m²
- Grundstücksfläche: 380 m²
- Nutzfläche: 37 m²
- Zimmer insgesamt: 9
- Badezimmer: 2
- Etagen: 2
- Terrassen: 2
Zustand & Erschließung
- Baujahr: 1829
- Zustand: renovierungsbedürftig
- Letzte Modernisierung: 1983
- Keller: voll unterkellert
Sonstiges
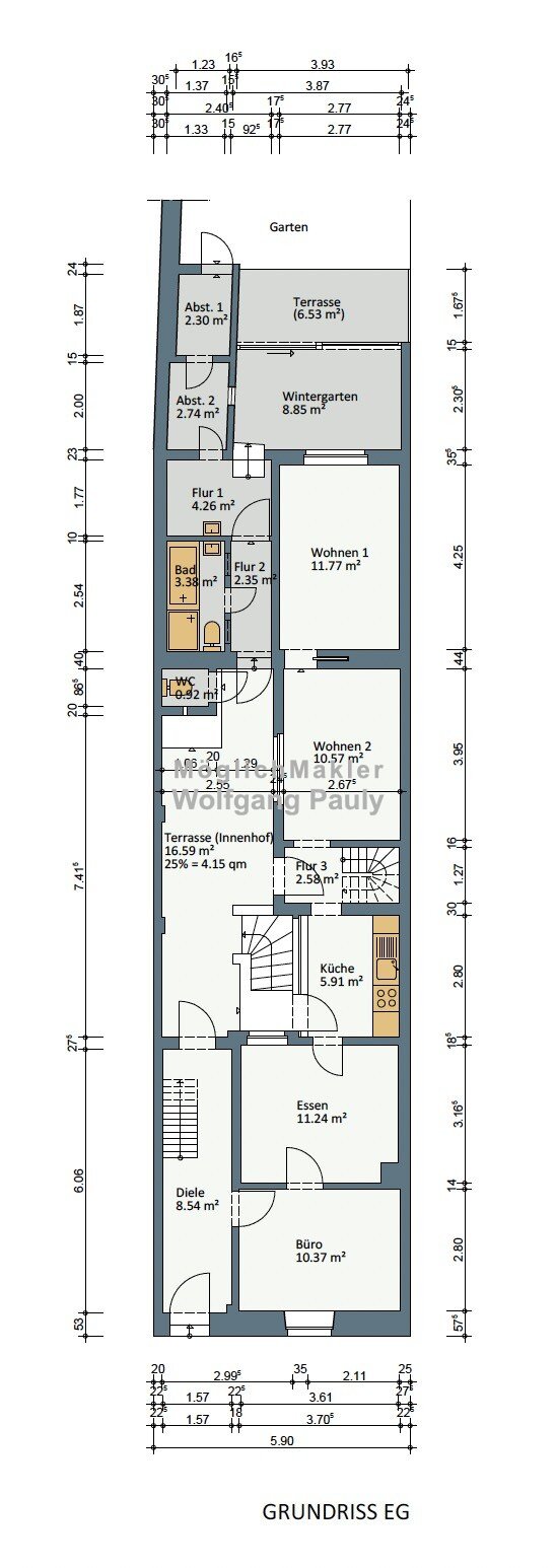
++ RAUM-AUFTEILUNGEN
*biet+kauf ist hier möglich
Wir unterscheiden hier zwischen dem Vorderhaus und dem Anbau im hinteren Bereich. Man erreicht den Anbau im EG durch die Diele über den Hof oder über das OG durch die Zimmer im Vorderhaus.
DIE RAUM-AUFTEILUNGEN
EG/ Vorderhaus
Entree
Treppe zum OG
Küche/ Zimmer … mit Durchgang
Zimmer
Hof
OG/ Vorderhaus
Diele
Abstellraum
Zimmer
Zimmer
Zimmer
EG/ Anbau
Entree/ Diele … mit Wendeltreppe ins OG
Küche
Zimmer
Zimmer
OG/ Anbau
Bad
Flur
Zimmer
Zimmer
Zimmer
Über den Hof erreichbar Wfl./Nfl.
WC
Bad
Wasch- und Heizraum
Abstellraum
Wintergarten
Gartenhaus
KG
Raum
Hausanschlussraum
WICHTIGE HINWEISE
Exposé Verstehen Sie dieses Exposé bitte als eine Vorabinformation zum Angebot. Alle Daten/ Detailangaben sind von uns nach Auskunft der Eigentümer wiedergegeben worden. Wolfgang Pauly Immobilien GmbH wird als Nachweismakler oder als Vermittlungsmakler tätig.
PROVISION
Gesetzlich vorgeschriebene Offenlegung. Käuferprovision verdient bei notarieller Beurkundung des Kaufvertrages.
Wolfgang Pauly Immobilien GmbH hat einen Vertrag in gleicher Provisionshöhe mit dem Verkäufer abgeschlossen.
Geldwäschegesetz (GwG) Wolfgang Pauly Immobilien GmbH ist verpflichtet nach § 2 Abs. 1 Nr. 14 und § 11 Abs. 1, 2 bzw. § 11 Abs. 4 GwG zu handeln. Gesetzestexte können am Firmensitz eingesehen werden.
§ 80 Abs. 4 GEG
Wir kommen unserer Verpflichtung hiermit nach, der Erwerberpartei ein informatorisches Beratungsgespräch zum Energieausweis durch einen Energieberater der Verbraucherzentrale Bundesverband anzubieten.
Link: https://verbraucherzentrale-energieberatung.de/beratung/stationaere-beratung/?cn-reloade=1
++- Immobilie ist verfügbar ab: sofort
-
*biet+kauf ist hier möglich
++
Das Haus aus der Mitte der Biedermeierzeit, anno 1829 wurde Ende des 19. Jahrhundert/ Anfang des 20. Jahrhunderts geteilt. Anbau und Aufstockung Anfang der 1970er, Erweiterung des Badezimmer Mitte der 80er.
DIE AUSSTATTUNGEN … ein kleiner Auszug
Massivbauweise … und teilweise
Fachwerk
2 separate Gasthermen
Meranti-Holz-Fenster … und
weiße Kunststoff-Fenster … mit teilweise
Isolierverglasung
Rollläden
Holztreppe im Vorderhaus
Wendeltreppe im AnbauHier ist alles wie es früher einmal war. Und doch ist alles im Wandel. Mit dem Generationenwechsel auf der Straße erwachen hier nach und nach alte Schmuckstücke zu neuem Leben. Seien Sie ein Teil davon, alles ist möglich.
Für Sie vor Ort:
Ilka Rath,
Ilka Rath mobil: 0176 340 662 72++
- Art der Ausstattung: Standard
- Heizungsart: Etagenheizung
- Befeuerung: Gas
- Badausstattung: Dusche, Badewanne
-
- Energieausweis-Art: Bedarf
- Energieausweis gültig bis: 03.04.2036
- Endenergiebedarf: 284 kWh/(m²*a)
- Primärenergieträger: Gas
- Heizenergieverbrauchskennwert: 284 kWh/(m²*a)
- Energieeffizienzklasse: H
- Baujahr (Energieausweis): 1829
- Energieausweis-Ausstellungsdatum: 03.04.2026
- Energieausweis-Jahrgang: ab Mai 2014
- Energieausweis-Gebäudeart: Wohngebäude
-
MÖNCHENGLADBACH
… ländlich geprägt, echte Nachbarschaft im Stadtteil BECKRATHNicht ganz der Nabel der Welt, aber auch nicht wo sich Fuchs und Hase gute Nacht sagen. Ruhige, erholsame Lage in grüner, ländlicher Umgebung mit besten Anbindungen an Autobahnen und ICE-Bahnhof. Der Bahnhof Herrath nimmt an der Bahnstrecke Aachen–Mönchengladbach als Tarifraumgrenzbahnhof zwischen dem Aachener Verkehrsverbund und dem Verkehrsverbund Rhein-Ruhr eine besondere Position ein.
Wo andere gerne Ihre Freizeit verbringen, z. B. am Segelflugplatz oder Golfclub Wanlo, verschiedenen Reiterhöfen mit dem Rheinischen Pferdestammbuch am Schloss Wickrath können Sie zukünftig wohnen. Die Natur beginnt vor der Tür mit Kunstrasen-Fußballplatz, der Quelle der Niers und nahezu unendlichen Rad- und Wanderwegen ++ Unser Angebot Nr. P14030Ob ins nahegelegene Wickrath oder doch lieber ins ebenso nahe Erkelenz, Beckrath punktet mit allen Angeboten fast vor der Haustüre … Einkaufen vom Hofladen über Einzelhandel, Supermärkte und Discounter … Banken und Sparkassen … Allgemein- und Fachärzte, Therapeuten, Apotheken und Krankenhäuser … Kindergärten in den Nachbardörfern, Grundschule im Dorf, weitereführende Schulen und Hochschule … Freizeit, Gastronomie und Entspannung … alles da, alles nah.
Die Lage in der Nähe des Autobahnkreuzes Wanlo verbindet Sie mit der Welt … Düsseldorf und Köln mit internationalen Flughäfen, Aachen inklusive Eifel, Ruhrgebiet und die Niederlande sind schnell erreicht. Und der ICE ab Erkelenz bringt Sie bequem in einem Rutsch bis nach Berlin.
BECKRATH
… LÄNDLICH UND DOCH ZENTRALFür Sie vor Ort:
Ilka Rath,
Ilka Rath mobil: 0176 340 662 72++
-
- Kaufpreis: 168.000 €
- Käuferprovision: 3.57 %
Grundrisse







































